住宅付店舗
1234 秋田市牛島西二丁目

| 価格 | 間取り | 土地面積 | 建物面積 | 築年月 |
|---|---|---|---|---|
| 2,900万円 | 3DK | 382.41m2(115.67坪) | 200.39m2(60.61坪) | 1997年10月 |
| 価格 | 2,900万円 |
|---|---|
| 間取り | 3DK |
| 土地面積 | 382.41m2(115.67坪) |
| 建物面積 | 200.39m2(60.61坪) |
| 築年月 | 1997年10月 |
この物件に関するお問い合わせ
POINT
【お客様サポート情報】
その1.住宅ローンサポート
住宅ローン事前審査を弊社にて手配いたします。
お客様にぴったりの住宅ローンを提案いたします。
弊社独自の資金計画ツールを使って提案させていただきます。
地方銀行、東北労働金庫、フラット35取り扱い機関、信用金庫、都市銀行など
その2.オンライン内覧
店舗へ行くことなく、パソコンやスマートフォン上でビデオ通話で資料や映像を見ながら営業担当者に相談することができます。
弊社担当が直接現地に出向いてオンラインにてご案内いたします。
リアルタイム対応なので、その場でご質問にお応えできます!
※ご利用時の注意事項
事前予約制です。
お問い合わせフォームまたはお電話にてご予約ください。
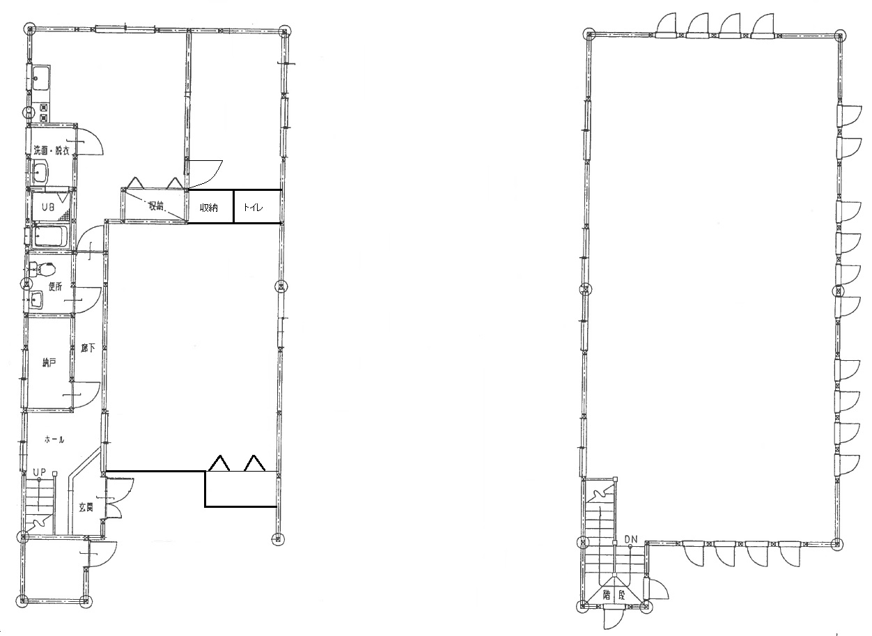
物件概要
| 土地面積 | 382.41m2(115.67坪) | 建物面積 | 200.39m2(60.61坪) |
|---|---|---|---|
| 建物構造 | 木造 地上2階建て | 土地権利 | 所有権 |
| 向き | - | 築年月 | 1997年10月 |
| 用途地域 | 第1種住居地域 近隣商業地域 |
建ぺい率 | 60% |
| 容積率 | 200% | 現況 | 空室 完成済 |
| 地目 | 宅地 | 都市計画 | 市街化 |
| 建築確認番号 | 引渡時期 | 相談 | |
| 駐車場 | 情報更新日 | 2025年10月20日 | |
| 次回更新予定日 | 2025年11月22日 | 私道面積 | 私道負担無 |
| セットバック | 接道状況 | 6.0m 一方 公道 | |
| 取引態様 | 専任媒介 | ||
| リフォーム | |||
| 設備 | 都市ガス / 公営水道 / 汚水:公共下水 / 雑排水:公共下水 / 雑排水:公共下水トイレ 灯油ボイラー 灯油 / 収納スペース / バス・トイレ別 / トイレ2ヶ所 |
||
| 制限事項 | |||
| 備考 | |||
| 土地面積 | 382.41m2(115.67坪) |
|---|---|
| 建物面積 | 200.39m2(60.61坪) |
| 建物構造 | 木造 地上2階建て |
| 土地権利 | 所有権 |
| 向き | - |
| 築年月 | 1997年10月 |
| 用途地域 | 第1種住居地域 近隣商業地域 |
| 建ぺい率 | 60% |
| 容積率 | 200% |
| 現況 | 空室 完成済 |
| 地目 | 宅地 |
| 都市計画 | 市街化 |
| 建築確認番号 | |
| 引渡時期 | 相談 |
| 駐車場 | |
| 情報更新日 | 2025年10月20日 |
| 次回更新予定日 | 2025年11月22日 |
| 私道面積 | 私道負担無 |
| セットバック | |
| 接道状況 | 6.0m 一方 公道 |
| 取引態様 | 専任媒介 |
| リフォーム | |
| 設備 | 都市ガス / 公営水道 / 汚水:公共下水 / 雑排水:公共下水 / 雑排水:公共下水トイレ 灯油ボイラー 灯油 / 収納スペース / バス・トイレ別 / トイレ2ヶ所 |
| 制限事項 | |
| 備考 |
- 地積、建物床面積、仕様に変更が生じる場合があります。
- 図面と現況が異なる場合には現況を優先します。
- 物件情報は最新のものをご提供させて頂きますが、万一売約済の場合はご容赦ください。
- 掲載物件の取引態様が「仲介」となっているものは、仲介手数料減額物件を除き、ご成約の際に規定の手数料及びそれに係わる消費税を別途申し受けます。
- 建築条件付土地は土地売買契約締結後、一定期間内に当社指定の不動産会社もしくは建築業者と建築請負契約を結ぶことが前提となります。期間中に建築請負契約が成立しなかった場合、土地売買契約は白紙となり、支払った金額は全額返金されます。
ローンシミュレーション
| 借入期間 | 年 |
|---|---|
| 借入金利 | % |
月々のお支払い例
円
※月々のお支払い例は金融機関や商品によって借入金額の条件は異なります。詳しくは店舗までお問い合わせください。
周辺環境
ショッピングセンター
イオン 秋田中央店
1562m(徒歩20分)
スーパー
(株)マルダイ 牛島店
202m(徒歩3分)
スーパー
ナイス 仁井田店
291m(徒歩4分)
コンビニ
ファミリーマート 秋田牛島東五丁目店
285m(徒歩4分)
コンビニ
ローソン 秋田仁井田緑町店
304m(徒歩4分)
中学校
秋田市立城南中学校
1194m(徒歩15分)
小学校
秋田市立大住小学校
1070m(徒歩14分)
銀行
(株)北都銀行 牛島支店
255m(徒歩4分)
銀行
(株)秋田銀行 牛島支店
526m(徒歩7分)
この物件に関するお問い合わせ
物件名:1234 秋田市牛島西二丁目 物件番号:20214709
10:00~18:00(休業日 火曜日・水曜日)
物件名:1234 秋田市牛島西二丁目 物件番号:20214709



