中古戸建
吉見町長谷

| 価格 | 間取り | 土地面積 | 建物面積 | 築年月 |
|---|---|---|---|---|
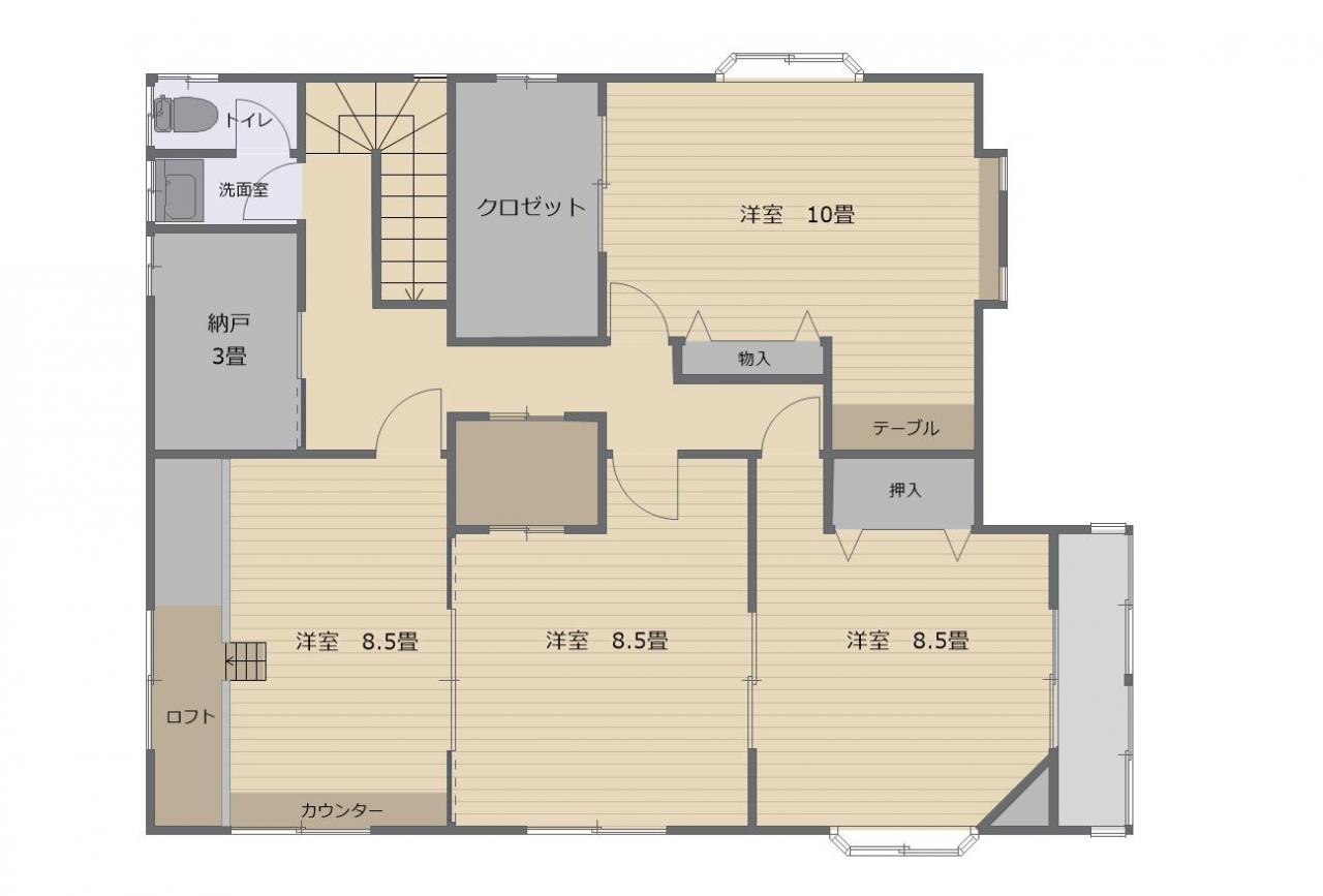
| 980万円 | 6LDK+S(納戸) | 178.14m2(53.88坪) | 189.62m2(57.36坪) | 1994年2月 |
| 価格 | 980万円 |
|---|---|
| 間取り | 6LDK+S(納戸) |
| 土地面積 | 178.14m2(53.88坪) |
| 建物面積 | 189.62m2(57.36坪) |
| 築年月 | 1994年2月 |
この物件に関するお問い合わせ
POINT
お部屋数の多い6LDK+S!収納もたっぷりできて大家族でものびのびと生活が可能です!
ぜひ一度ご内覧ください
お問い合わせお待ちしております!
物件概要
| 土地面積 | 178.14m2(53.88坪) | 建物面積 | 189.62m2(57.36坪) |
|---|---|---|---|
| 建物構造 | 木造 地上2階建て | 土地権利 | 所有権 |
| 向き | 東 | 築年月 | 1994年2月 |
| 用途地域 | 無指定 |
建ぺい率 | 60% |
| 容積率 | 200% | 現況 | 空家 完成済 |
| 地目 | 宅地 | 都市計画 | 市街化調整 |
| 建築確認番号 | 引渡時期 | 即時 | |
| 駐車場 | カースペース有 3台 | 情報更新日 | 2025年11月1日 |
| 次回更新予定日 | 2025年11月14日 | 私道面積 | 私道負担無 |
| セットバック | 接道状況 | 北東側 4.0m 一方 公道 | |
| 取引態様 | 専任媒介 | ||
| リフォーム | |||
| 設備 | LPG / 公営水道 / 汚水:個別浄化槽 / 汚水:個別浄化槽トイレ / ガスコンロ 2階建 / 2面採光 / 陽当り良好 / 通風良好 / 出窓 / 和室 / 吹抜け / フローリング / 浴室に窓 / 追焚機能 / トイレ2ヶ所 / 室内洗濯機置場 / 洗濯機置場有 / 洗面所独立 / 山が見える |
||
| 制限事項 | 景観法 | ||
| 備考 | ※司法書士売主指定 ※契約不適合責任免責 ※境界非明示 ※現況による引渡し |
||
| 土地面積 | 178.14m2(53.88坪) |
|---|---|
| 建物面積 | 189.62m2(57.36坪) |
| 建物構造 | 木造 地上2階建て |
| 土地権利 | 所有権 |
| 向き | 東 |
| 築年月 | 1994年2月 |
| 用途地域 | 無指定 |
| 建ぺい率 | 60% |
| 容積率 | 200% |
| 現況 | 空家 完成済 |
| 地目 | 宅地 |
| 都市計画 | 市街化調整 |
| 建築確認番号 | |
| 引渡時期 | 即時 |
| 駐車場 | カースペース有 3台 |
| 情報更新日 | 2025年11月1日 |
| 次回更新予定日 | 2025年11月14日 |
| 私道面積 | 私道負担無 |
| セットバック | |
| 接道状況 | 北東側 4.0m 一方 公道 |
| 取引態様 | 専任媒介 |
| リフォーム | |
| 設備 | LPG / 公営水道 / 汚水:個別浄化槽 / 汚水:個別浄化槽トイレ / ガスコンロ 2階建 / 2面採光 / 陽当り良好 / 通風良好 / 出窓 / 和室 / 吹抜け / フローリング / 浴室に窓 / 追焚機能 / トイレ2ヶ所 / 室内洗濯機置場 / 洗濯機置場有 / 洗面所独立 / 山が見える |
| 制限事項 | 景観法 |
| 備考 | ※司法書士売主指定 ※契約不適合責任免責 ※境界非明示 ※現況による引渡し |
- 地積、建物床面積、仕様に変更が生じる場合があります。
- 図面と現況が異なる場合には現況を優先します。
- 物件情報は最新のものをご提供させて頂きますが、万一売約済の場合はご容赦ください。
- 掲載物件の取引態様が「仲介」となっているものは、仲介手数料減額物件を除き、ご成約の際に規定の手数料及びそれに係わる消費税を別途申し受けます。
- 建築条件付土地は土地売買契約締結後、一定期間内に当社指定の不動産会社もしくは建築業者と建築請負契約を結ぶことが前提となります。期間中に建築請負契約が成立しなかった場合、土地売買契約は白紙となり、支払った金額は全額返金されます。
ローンシミュレーション
| 借入期間 | 年 |
|---|---|
| 借入金利 | % |
月々のお支払い例
円
※月々のお支払い例は金融機関や商品によって借入金額の条件は異なります。詳しくは店舗までお問い合わせください。
周辺環境
スーパー
ベルク 砂田店
1493m(徒歩19分)
ベルク 砂田店
コンビニ
セブン-イレブン 吉見百穴店
752m(徒歩10分)
セブン-イレブン 吉見百穴店
病院
シャローム病院
1602m(徒歩21分)
シャローム病院
公園
天王山自然公園
961m(徒歩13分)
天王山自然公園
この物件に関するお問い合わせ
物件名:吉見町長谷 物件番号:20214781
10:00 ~ 19:00(休業日 毎週火・水曜日/事前予約で定休日でもご対応できます)
物件名:吉見町長谷 物件番号:20214781




