練馬区西大泉4丁目新築分譲住宅

| 価格 | 間取り | 土地面積 | 建物面積 | 築年月 |
|---|---|---|---|---|
| 5,590万円 | 4LDK | 108.70m2(32.88坪) | 94.40m2(28.55坪) | 2025年11月 |
| 価格 | 5,590万円 |
|---|---|
| 間取り | 4LDK |
| 土地面積 | 108.70m2(32.88坪) |
| 建物面積 | 94.40m2(28.55坪) |
| 築年月 | 2025年11月 |
現地販売会
リビングダイニング
約19帖で南からの日が差し込むダイニングキッチン!
現地外観写真、西側より撮影
建物は完成済みのためいつでもご内見可能です♪
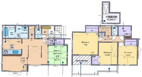
間取図
駐車スペース1台付き、ゆとりある広さの約19帖リビング、全室収納付きの居室4室を備えた4LDKです。
リビングダイニング
南側に向いた大きな窓が二つあり明るい室内です!
リビングダイニング
ご家族の動線も確保しやすく使い勝手の良いリビングダイニングスペース♪
リビングダイニング
西側の道路面からの目線も気にならないプライバシーを守れる窓配置!
リビングダイニング
ダイニング空間も広々としており大きなテーブルも置いてご使用いただけます♪
リビングダイニング
キッチンから直接手渡しできる対面式キッチン仕様!
キッチン
ご家族と顔を合わせられる対面式キッチン、上部も開放的なオープンスタイルです♪
キッチン
収納豊富なシステムキッチン、食洗機付きです!
キッチン
耐久性と熱に強いステンレス製シンクのキッチンになっております!
キッチン
レバーひとつで水お湯が調整できる混合水栓、浄水機能も付いたタイプになっております♪
キッチン
人造大理石製のワークスペースも広々として調理がはかどります!
キッチン
ご家族分の食器を一気に洗浄できるビルトイン食洗器付き、家事の時短に役立ちます♪
キッチン
都市ガスを使用する「3口」ガスコンロ、コンロ上部はお手入れのしやすいホーロー製です!
キッチン
最下部まで余すことなく収納スペースになっております♪
洗面化粧室
洗髪も可能なシャンプードレッサー、3面鏡キャビネットは収納にもなっております♪
浴室
足を伸ばして入浴できる広々浴槽、浴槽内の段差で半身浴も可能です!
浴室
洗い場も広くスペースが取れた1坪サイズユニットバスです♪
浴室
衣類の乾燥にも利用可能な浴室乾燥機が搭載されております!
2階南東側洋室
東側と南側の2面採光で明るさを確保した約5.3帖の洋室です!
2階南東側洋室
となりの居室の上部空間を利用したロフトもございます♪
2階南東側居室、ロフト
収納スペースとして設計されておりますので天井は低いですが収納力は高いです!
2階南西側洋室
南側のバルコニーに出入り可能な約6.7帖の洋室、収納も完備♪
2階南西側洋室、収納
各居室にはクローゼット扉付きの収納がついております!
バルコニー
南向きで全体的に日当たりの良いバルコニー♪
玄関、シューズボックス
姿見鏡のついたシューズボックスを採用、たくさんのお履き物を収納可能です!
練馬区立大泉西小学校 260m 徒歩約4分
練馬区立大泉西中学校 850m 徒歩約11分
西大泉保育園 820m 徒歩約11分
ChaCha Children Oizumi 1170m 徒歩約15分
サミットストア新座片山店 830m 徒歩約11分
いなげや練馬西大泉店 960m 徒歩約12分
ファミリーマート西大泉四丁目店 280m 徒歩約4分
セブンイレブン練馬西大泉6丁目店 420m 徒歩約6分
ドラッグセイムス新座片山3丁目店 490m 徒歩約7分
周囲には生産緑地などの自然が多く残り、大きな公園も徒歩圏内に揃う駐車スペース1台付き4LDK住宅!お庭のスペースもありますので敷地内で緑を楽しんでいただくことも可能、耐震等級「3」の安心設計住宅です♪
物件概要
| 土地面積 | 108.70m2(32.88坪) | 建物面積 | 94.40m2(28.55坪) |
|---|---|---|---|
| 建物構造 | 木造 地上2階建て | 土地権利 | 所有権 |
| 向き | 南 | 築年月 | 2025年11月 |
| 用途地域 | 第1種低層住居専用地域 |
建ぺい率 | 50% |
| 容積率 | 100% | 現況 | 空家 完成済 |
| 地目 | 宅地 | 都市計画 | 市街化 |
| 建築確認番号 | 第HPA-25-06921-1号 | 引渡時期 | 相談 |
| 駐車場 | カースペース有 1台 | 情報更新日 | 2026年1月24日 |
| 次回更新予定日 | 2026年1月31日 | 私道面積 | 私道負担無 |
| セットバック | - | 接道状況 | 西側 4.0m 一方 私道 接面:9.1m |
| 取引態様 | 媒介 | ||
| リフォーム | - | ||
| 設備 | 都市ガス / 公営水道 / 汚水:公共下水 / 雑排水:公共下水 / 東京電力 2階建 / LDK18畳以上 / ロフト / 全居室収納 / 床下収納 / クローゼット / シューズボックス / 対面式キッチン / カウンターキッチン / 食器洗乾燥機 / 浴室に窓 / 浴室1坪以上 / トイレ2ヶ所 / 室内洗濯機置場 / 洗濯機置場有 / 洗面所独立 / バルコニー / 南面バルコニー / 小学校 徒歩10分以内 / 小学校まで1km以内 / 都市ガス |
||
| 制限事項 | 高度地区 準防火地域 | ||
| 備考 | ■西武池袋線「保谷駅」からバス6分 最寄り駅の「四面塔稲荷」停からは徒歩約5分です! ■西武池袋線「大泉学園駅」からもアクセス可能 徒歩で28分、バス利用だとバス停から徒歩約7分です♪ ■周辺は車通りが少なく、とても閑静な住宅街 指定の学校も徒歩約4分で子育て世代におすすめです! ■コンビニまで徒歩約4分、スーパーやドラッグストアも 徒歩圏内に揃っております♪ ■建物は耐震等級3で地震に強い安心住宅 その他の性能も「性能評価書」にて確認が可能です! ■リビングは1階で広々とした約19帖の広さ 対面式キッチンで一体感のある家族団らんの空間です♪ ■全居室収納付きの4LDK住宅です! |
||
| 土地面積 | 108.70m2(32.88坪) |
|---|---|
| 建物面積 | 94.40m2(28.55坪) |
| 建物構造 | 木造 地上2階建て |
| 土地権利 | 所有権 |
| 向き | 南 |
| 築年月 | 2025年11月 |
| 用途地域 | 第1種低層住居専用地域 |
| 建ぺい率 | 50% |
| 容積率 | 100% |
| 現況 | 空家 完成済 |
| 地目 | 宅地 |
| 都市計画 | 市街化 |
| 建築確認番号 | 第HPA-25-06921-1号 |
| 引渡時期 | 相談 |
| 駐車場 | カースペース有 1台 |
| 情報更新日 | 2026年1月24日 |
| 次回更新予定日 | 2026年1月31日 |
| 私道面積 | 私道負担無 |
| セットバック | - |
| 接道状況 | 西側 4.0m 一方 私道 接面:9.1m |
| 取引態様 | 媒介 |
| リフォーム | - |
| 設備 | 都市ガス / 公営水道 / 汚水:公共下水 / 雑排水:公共下水 / 東京電力 2階建 / LDK18畳以上 / ロフト / 全居室収納 / 床下収納 / クローゼット / シューズボックス / 対面式キッチン / カウンターキッチン / 食器洗乾燥機 / 浴室に窓 / 浴室1坪以上 / トイレ2ヶ所 / 室内洗濯機置場 / 洗濯機置場有 / 洗面所独立 / バルコニー / 南面バルコニー / 小学校 徒歩10分以内 / 小学校まで1km以内 / 都市ガス |
| 制限事項 | 高度地区 準防火地域 |
| 備考 | ■西武池袋線「保谷駅」からバス6分 最寄り駅の「四面塔稲荷」停からは徒歩約5分です! ■西武池袋線「大泉学園駅」からもアクセス可能 徒歩で28分、バス利用だとバス停から徒歩約7分です♪ ■周辺は車通りが少なく、とても閑静な住宅街 指定の学校も徒歩約4分で子育て世代におすすめです! ■コンビニまで徒歩約4分、スーパーやドラッグストアも 徒歩圏内に揃っております♪ ■建物は耐震等級3で地震に強い安心住宅 その他の性能も「性能評価書」にて確認が可能です! ■リビングは1階で広々とした約19帖の広さ 対面式キッチンで一体感のある家族団らんの空間です♪ ■全居室収納付きの4LDK住宅です! |
- 地積、建物床面積、仕様に変更が生じる場合があります。
- 図面と現況が異なる場合には現況を優先します。
- 物件情報は最新のものをご提供させて頂きますが、万一売約済の場合はご容赦ください。
- 掲載物件の取引態様が「仲介」となっているものは、仲介手数料減額物件を除き、ご成約の際に規定の手数料及びそれに係わる消費税を別途申し受けます。
- 建築条件付土地は土地売買契約締結後、一定期間内に当社指定の不動産会社もしくは建築業者と建築請負契約を結ぶことが前提となります。期間中に建築請負契約が成立しなかった場合、土地売買契約は白紙となり、支払った金額は全額返金されます。
ローンシミュレーション
| 借入期間 | 年 |
|---|---|
| 借入金利 | % |
※月々のお支払い例は金融機関や商品によって借入金額の条件は異なります。詳しくは店舗までお問い合わせください。
周辺環境
練馬区立大泉西小学校
260m(徒歩4分)
徒歩約4分
練馬区立大泉西中学校
850m(徒歩11分)
徒歩約11分
西大泉保育園
820m(徒歩11分)
徒歩約11分
ChaCha Children Oizumi
1170m(徒歩15分)
徒歩約15分
サミットストア新座片山店
830m(徒歩11分)
徒歩約11分
いなげや練馬西大泉店
960m(徒歩12分)
徒歩約12分
ファミリーマート西大泉四丁目店
280m(徒歩4分)
徒歩約4分
セブンイレブン練馬西大泉6丁目店
420m(徒歩6分)
徒歩約6分
ドラッグセイムス新座片山3丁目店
490m(徒歩7分)
徒歩約7分





