中古戸建
岡山市中区八幡 中古戸建

| 価格 | 間取り | 土地面積 | 建物面積 | 築年月 |
|---|---|---|---|---|
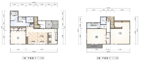
| 3,580万円 | 3LDK | 165.45m2(50.04坪) | 121.51m2(36.75坪) | 2019年11月 |
| 価格 | 3,580万円 |
|---|---|
| 間取り | 3LDK |
| 土地面積 | 165.45m2(50.04坪) |
| 建物面積 | 121.51m2(36.75坪) |
| 築年月 | 2019年11月 |
この物件に関するお問い合わせ
POINT
物件概要
| 土地面積 | 165.45m2(50.04坪) | 建物面積 | 121.51m2(36.75坪) |
|---|---|---|---|
| 建物構造 | 木造 地上2階建て | 土地権利 | 所有権 |
| 向き | - | 築年月 | 2019年11月 |
| 用途地域 | 第1種中高層住居専用地域 |
建ぺい率 | 60% |
| 容積率 | 200% | 現況 | 空家 完成済 |
| 地目 | 宅地 | 都市計画 | 市街化 |
| 建築確認番号 | 引渡時期 | 即時 | |
| 駐車場 | カースペース有 2台 | 情報更新日 | 2025年8月25日 |
| 次回更新予定日 | 2025年11月22日 | 私道面積 | 私道負担無 |
| セットバック | 接道状況 | 南側 12m 公道 接面:12m | |
| 取引態様 | 媒介 | ||
| リフォーム | |||
| 設備 | LPG / 公営水道 / 汚水:個別浄化槽 / 雑排水:浄化槽 / IHコンロ 三口 / 中国電力 耐震基準適合証明書 / 長期優良住宅認定通知書 / 新築時・増改築時の設計図 / 土地50坪以上 / 閑静な住宅地 / 前道6m以上 / 平坦地 / 2沿線以上利用可 / 2階建 / 2面採光 / 陽当り良好 / 通風良好 / LDK15畳以上 / 全居室フローリング / 人感センサー付照明 / 24時間換気システム / 床暖房 / 全居室収納 / 納戸 / システムキッチン / カウンターキッチン / IHクッキングヒーター / 食器洗乾燥機 / 浴室乾燥機 / 追焚機能 / シャワールーム / 浴室1坪以上 / シャワー付洗面化粧台 / トイレ2ヶ所 / 温水洗浄便座 / 室内洗濯機置場 / ワイドバルコニー / 駐車2台可 / 整備された歩道 |
||
| 制限事項 | |||
| 備考 | ●タマホーム施工 ●太陽光パネル4,7kw搭載 ●日当たり良好 ●建築住宅性能評価 ●食堂、リビングに床暖房設置済み ●閑静な住宅街 ●耐震基準適合証明書 ●長期優良住宅認定通知書 ●新築時・増改築時の設計図書 |
||
| 土地面積 | 165.45m2(50.04坪) |
|---|---|
| 建物面積 | 121.51m2(36.75坪) |
| 建物構造 | 木造 地上2階建て |
| 土地権利 | 所有権 |
| 向き | - |
| 築年月 | 2019年11月 |
| 用途地域 | 第1種中高層住居専用地域 |
| 建ぺい率 | 60% |
| 容積率 | 200% |
| 現況 | 空家 完成済 |
| 地目 | 宅地 |
| 都市計画 | 市街化 |
| 建築確認番号 | |
| 引渡時期 | 即時 |
| 駐車場 | カースペース有 2台 |
| 情報更新日 | 2025年8月25日 |
| 次回更新予定日 | 2025年11月22日 |
| 私道面積 | 私道負担無 |
| セットバック | |
| 接道状況 | 南側 12m 公道 接面:12m |
| 取引態様 | 媒介 |
| リフォーム | |
| 設備 | LPG / 公営水道 / 汚水:個別浄化槽 / 雑排水:浄化槽 / IHコンロ 三口 / 中国電力 耐震基準適合証明書 / 長期優良住宅認定通知書 / 新築時・増改築時の設計図 / 土地50坪以上 / 閑静な住宅地 / 前道6m以上 / 平坦地 / 2沿線以上利用可 / 2階建 / 2面採光 / 陽当り良好 / 通風良好 / LDK15畳以上 / 全居室フローリング / 人感センサー付照明 / 24時間換気システム / 床暖房 / 全居室収納 / 納戸 / システムキッチン / カウンターキッチン / IHクッキングヒーター / 食器洗乾燥機 / 浴室乾燥機 / 追焚機能 / シャワールーム / 浴室1坪以上 / シャワー付洗面化粧台 / トイレ2ヶ所 / 温水洗浄便座 / 室内洗濯機置場 / ワイドバルコニー / 駐車2台可 / 整備された歩道 |
| 制限事項 | |
| 備考 | ●タマホーム施工 ●太陽光パネル4,7kw搭載 ●日当たり良好 ●建築住宅性能評価 ●食堂、リビングに床暖房設置済み ●閑静な住宅街 ●耐震基準適合証明書 ●長期優良住宅認定通知書 ●新築時・増改築時の設計図書 |
- 地積、建物床面積、仕様に変更が生じる場合があります。
- 図面と現況が異なる場合には現況を優先します。
- 物件情報は最新のものをご提供させて頂きますが、万一売約済の場合はご容赦ください。
- 掲載物件の取引態様が「仲介」となっているものは、仲介手数料減額物件を除き、ご成約の際に規定の手数料及びそれに係わる消費税を別途申し受けます。
- 建築条件付土地は土地売買契約締結後、一定期間内に当社指定の不動産会社もしくは建築業者と建築請負契約を結ぶことが前提となります。期間中に建築請負契約が成立しなかった場合、土地売買契約は白紙となり、支払った金額は全額返金されます。
ローンシミュレーション
| 借入期間 | 年 |
|---|---|
| 借入金利 | % |
月々のお支払い例
円
※月々のお支払い例は金融機関や商品によって借入金額の条件は異なります。詳しくは店舗までお問い合わせください。
周辺環境
この物件に関するお問い合わせ
物件名:岡山市中区八幡 中古戸建 物件番号:20222584
9:30~17:30(休業日 毎週火曜日、水曜日)
物件名:岡山市中区八幡 中古戸建 物件番号:20222584






