中古戸建 現地見学会
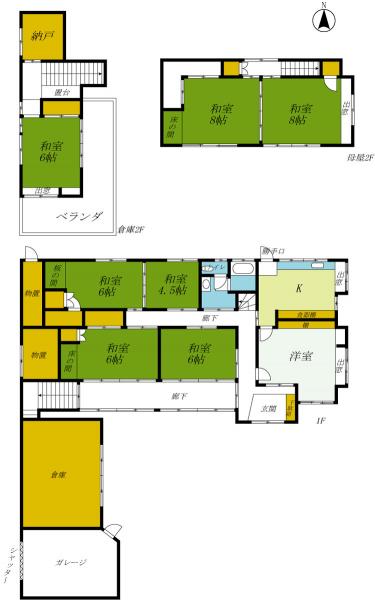
小山市大川島 2階建て7K+倉庫

| 価格 | 間取り | 土地面積 | 建物面積 | 築年月 |
|---|---|---|---|---|
| 320万円 | 7K | 320.66m2(96.99坪) | 138.26m2(41.82坪) | 1970年7月 |
| 価格 | 320万円 |
|---|---|
| 間取り | 7K |
| 土地面積 | 320.66m2(96.99坪) |
| 建物面積 | 138.26m2(41.82坪) |
| 築年月 | 1970年7月 |
現地見学会
開催期間:9月11日~9月10日 開催時間:10:00~17:00
【セルフ内覧可】
(Web上での身分証明書の確認あり)
事前に必ず予約して下さい
【セルフ内覧可】
(Web上での身分証明書の確認あり)
事前に必ず予約して下さい
この物件に関するお問い合わせ
POINT
便利な立地でありながら、静かな環境で心休まる毎日を実現できる物件です。
ぜひ一度、ご自身の目でその魅力をご確認ください^^
物件概要
| 土地面積 | 320.66m2(96.99坪) | 建物面積 | 138.26m2(41.82坪) |
|---|---|---|---|
| 建物構造 | 木造 地上2階建て | 土地権利 | 所有権 |
| 向き | - | 築年月 | 1970年7月 |
| 用途地域 | 無指定 |
建ぺい率 | 60% |
| 容積率 | 200% | 現況 | 空家 完成済 |
| 地目 | 宅地 | 都市計画 | 市街化調整 |
| 建築確認番号 | 引渡時期 | 即時 | |
| 駐車場 | カースペース有 2台 | 情報更新日 | 2025年11月10日 |
| 次回更新予定日 | 2025年11月22日 | 私道面積 | 私道負担無 |
| セットバック | 接道状況 | 南側 2.7m 角地 公道、西側 4.0m 公道 | |
| 取引態様 | 一般 | ||
| リフォーム | |||
| 設備 | 個別LPG / 井戸 / 汚水:汲取り / 東京電力 土地50坪以上 / 2階建 / 陽当り良好 / 通風良好 / 和室 / フローリング / 浴室に窓 / 庭 / 駐車2台可 |
||
| 制限事項 | 宅地造成工事規制区域 法22条指定区域/宅地造成規制区域/景観条例(市)/洪水浸水想定区域(0.5m~3.0m)/年間固定資産税額:30403円/諸経費:495000円(印紙1000円、仲介手数料330000円、移転登記費用164000円) 物件の詳細・調査はご自身でご内覧を通してご確認ください。司法書士による所有権移転手続き、ガス会社は売主指定です。 公簿取引・現況有姿・契約不適合責任免責・境界非明示でのお引き渡しとさせていただきます。 |
||
| 備考 | 【陽当たり良好で心地よい暮らしを手に入れませんか?】 小山市大川島にある2階建て7Kです! この一戸建ては、光がたっぷり差し込む明るい空間が魅力です。 3棟の建物があり、趣味の部屋やプライベートな空間として活用できます。 家族全員の時間をもっと豊かにするための選択肢が広がります。 さらに、DIYが得意な方には、思い通りにカスタマイズする楽しさも。 休日には家族と一緒にインテリアを工夫したり、庭でのんびり過ごしたり☆ そんなライフスタイルが待っています。 |
||
| 土地面積 | 320.66m2(96.99坪) |
|---|---|
| 建物面積 | 138.26m2(41.82坪) |
| 建物構造 | 木造 地上2階建て |
| 土地権利 | 所有権 |
| 向き | - |
| 築年月 | 1970年7月 |
| 用途地域 | 無指定 |
| 建ぺい率 | 60% |
| 容積率 | 200% |
| 現況 | 空家 完成済 |
| 地目 | 宅地 |
| 都市計画 | 市街化調整 |
| 建築確認番号 | |
| 引渡時期 | 即時 |
| 駐車場 | カースペース有 2台 |
| 情報更新日 | 2025年11月10日 |
| 次回更新予定日 | 2025年11月22日 |
| 私道面積 | 私道負担無 |
| セットバック | |
| 接道状況 | 南側 2.7m 角地 公道、西側 4.0m 公道 |
| 取引態様 | 一般 |
| リフォーム | |
| 設備 | 個別LPG / 井戸 / 汚水:汲取り / 東京電力 土地50坪以上 / 2階建 / 陽当り良好 / 通風良好 / 和室 / フローリング / 浴室に窓 / 庭 / 駐車2台可 |
| 制限事項 | 宅地造成工事規制区域 法22条指定区域/宅地造成規制区域/景観条例(市)/洪水浸水想定区域(0.5m~3.0m)/年間固定資産税額:30403円/諸経費:495000円(印紙1000円、仲介手数料330000円、移転登記費用164000円) 物件の詳細・調査はご自身でご内覧を通してご確認ください。司法書士による所有権移転手続き、ガス会社は売主指定です。 公簿取引・現況有姿・契約不適合責任免責・境界非明示でのお引き渡しとさせていただきます。 |
| 備考 | 【陽当たり良好で心地よい暮らしを手に入れませんか?】 小山市大川島にある2階建て7Kです! この一戸建ては、光がたっぷり差し込む明るい空間が魅力です。 3棟の建物があり、趣味の部屋やプライベートな空間として活用できます。 家族全員の時間をもっと豊かにするための選択肢が広がります。 さらに、DIYが得意な方には、思い通りにカスタマイズする楽しさも。 休日には家族と一緒にインテリアを工夫したり、庭でのんびり過ごしたり☆ そんなライフスタイルが待っています。 |
- 地積、建物床面積、仕様に変更が生じる場合があります。
- 図面と現況が異なる場合には現況を優先します。
- 物件情報は最新のものをご提供させて頂きますが、万一売約済の場合はご容赦ください。
- 掲載物件の取引態様が「仲介」となっているものは、仲介手数料減額物件を除き、ご成約の際に規定の手数料及びそれに係わる消費税を別途申し受けます。
- 建築条件付土地は土地売買契約締結後、一定期間内に当社指定の不動産会社もしくは建築業者と建築請負契約を結ぶことが前提となります。期間中に建築請負契約が成立しなかった場合、土地売買契約は白紙となり、支払った金額は全額返金されます。
ローンシミュレーション
| 借入期間 | 年 |
|---|---|
| 借入金利 | % |
月々のお支払い例
円
※月々のお支払い例は金融機関や商品によって借入金額の条件は異なります。詳しくは店舗までお問い合わせください。
周辺環境
この物件に関するお問い合わせ
物件名:小山市大川島 2階建て7K+倉庫 物件番号:20224213
午前10時~午後6時(休業日 毎週火曜日・水曜日)
物件名:小山市大川島 2階建て7K+倉庫 物件番号:20224213







