中古戸建
東松山市東平

| 価格 | 間取り | 土地面積 | 建物面積 | 築年月 |
|---|---|---|---|---|
| 698万円 | 5LDK | 270.41m2(81.79坪) | 110.85m2(33.53坪) | 1965年3月 |
| 価格 | 698万円 |
|---|---|
| 間取り | 5LDK |
| 土地面積 | 270.41m2(81.79坪) |
| 建物面積 | 110.85m2(33.53坪) |
| 築年月 | 1965年3月 |
この物件に関するお問い合わせ
閑静な住宅街!
カースペース2台
広々庭+プレハブ付き
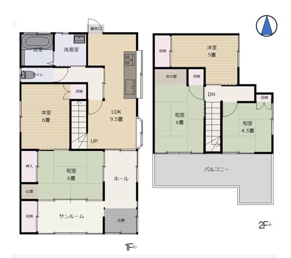
間取り図
開放的な玄関
開放的な玄関
1階 和室6畳
1階 和室6畳
1階 洋室6畳
1階 洋室6畳
LDK9.5畳
LDK9.5畳
2階 洋室5畳
2階 和室6畳
トイレ
洗面台・洗面所
浴室
バルコニー
お庭
外観写真
カースペース2台※1台分は車種によります
住居からの眺望
ベルク 東松山東平店 2000m ベルク 東松山東平店
セブン-イレブン 東松山東平店 1600m セブン-イレブン 東松山東平店
東松山市松山第2小学校 1600m 東松山市立第2小学校
東松山市立北中学校 1800m 東松山市立北中学校
東平松原街区公園 450m 東平松原街区公園
クリエイトS・D 東松山東平店 1800m クリエイトS・D 東松山東平店
POINT
開放的な玄関が素敵!広いお庭でゆったり!
ぜひ一度ご内覧ください♪
物件概要
| 土地面積 | 270.41m2(81.79坪) | 建物面積 | 110.85m2(33.53坪) |
|---|---|---|---|
| 建物構造 | 木造 地上2階建て 亜鉛メッキ鋼板葺 | 土地権利 | 所有権 |
| 向き | 南 | 築年月 | 1965年3月 |
| 用途地域 | 無指定 |
建ぺい率 | 60% |
| 容積率 | 200% | 現況 | 空家 完成済 |
| 地目 | 宅地 | 都市計画 | 市街化調整 |
| 建築確認番号 | 引渡時期 | 即時 | |
| 駐車場 | 車庫有 2台 | 情報更新日 | 2025年11月1日 |
| 次回更新予定日 | 2025年11月14日 | 私道面積 | 私道負担無 |
| セットバック | 接道状況 | 東側 4.0m 一方 公道 | |
| 取引態様 | 売主 | ||
| リフォーム | |||
| 設備 | 個別LPG / 公営水道 / 汚水:個別浄化槽 / 電気:あり 土地50坪以上 / 閑静な住宅地 / 2階建 / 南向き / 2面採光 / 陽当り良好 / 通風良好 / 出窓 / 全居室6畳以上 / 和室 / サンルーム / フローリング / 全居室収納 / 浴室に窓 / 室内洗濯機置場 / 洗濯機置場有 / 洗面所独立 / バルコニー / 庭 / 南庭 |
||
| 制限事項 | 景観法 | ||
| 備考 | ※現状による引き渡し ※境界非明示 ※司法書士売主指定 |
||
| 土地面積 | 270.41m2(81.79坪) |
|---|---|
| 建物面積 | 110.85m2(33.53坪) |
| 建物構造 | 木造 地上2階建て 亜鉛メッキ鋼板葺 |
| 土地権利 | 所有権 |
| 向き | 南 |
| 築年月 | 1965年3月 |
| 用途地域 | 無指定 |
| 建ぺい率 | 60% |
| 容積率 | 200% |
| 現況 | 空家 完成済 |
| 地目 | 宅地 |
| 都市計画 | 市街化調整 |
| 建築確認番号 | |
| 引渡時期 | 即時 |
| 駐車場 | 車庫有 2台 |
| 情報更新日 | 2025年11月1日 |
| 次回更新予定日 | 2025年11月14日 |
| 私道面積 | 私道負担無 |
| セットバック | |
| 接道状況 | 東側 4.0m 一方 公道 |
| 取引態様 | 売主 |
| リフォーム | |
| 設備 | 個別LPG / 公営水道 / 汚水:個別浄化槽 / 電気:あり 土地50坪以上 / 閑静な住宅地 / 2階建 / 南向き / 2面採光 / 陽当り良好 / 通風良好 / 出窓 / 全居室6畳以上 / 和室 / サンルーム / フローリング / 全居室収納 / 浴室に窓 / 室内洗濯機置場 / 洗濯機置場有 / 洗面所独立 / バルコニー / 庭 / 南庭 |
| 制限事項 | 景観法 |
| 備考 | ※現状による引き渡し ※境界非明示 ※司法書士売主指定 |
- 地積、建物床面積、仕様に変更が生じる場合があります。
- 図面と現況が異なる場合には現況を優先します。
- 物件情報は最新のものをご提供させて頂きますが、万一売約済の場合はご容赦ください。
- 掲載物件の取引態様が「仲介」となっているものは、仲介手数料減額物件を除き、ご成約の際に規定の手数料及びそれに係わる消費税を別途申し受けます。
- 建築条件付土地は土地売買契約締結後、一定期間内に当社指定の不動産会社もしくは建築業者と建築請負契約を結ぶことが前提となります。期間中に建築請負契約が成立しなかった場合、土地売買契約は白紙となり、支払った金額は全額返金されます。
ローンシミュレーション
| 借入期間 | 年 |
|---|---|
| 借入金利 | % |
月々のお支払い例
円
※月々のお支払い例は金融機関や商品によって借入金額の条件は異なります。詳しくは店舗までお問い合わせください。
周辺環境
スーパー
ベルク 東松山東平店
2000m(徒歩25分)
ベルク 東松山東平店
コンビニ
セブン-イレブン 東松山東平店
1600m(徒歩20分)
セブン-イレブン 東松山東平店
小学校
東松山市松山第2小学校
1600m(徒歩20分)
東松山市立第2小学校
中学校
東松山市立北中学校
1800m(徒歩23分)
東松山市立北中学校
公園
東平松原街区公園
450m(徒歩6分)
東平松原街区公園
ドラッグストア
クリエイトS・D 東松山東平店
1800m(徒歩23分)
クリエイトS・D 東松山東平店
この物件に関するお問い合わせ
物件名:東松山市東平 物件番号:20226163
10:00 ~ 19:00(休業日 毎週火・水曜日/事前予約で定休日でもご対応できます)
物件名:東松山市東平 物件番号:20226163







