所沢市久米4期 新築分譲住宅全4棟 4号棟

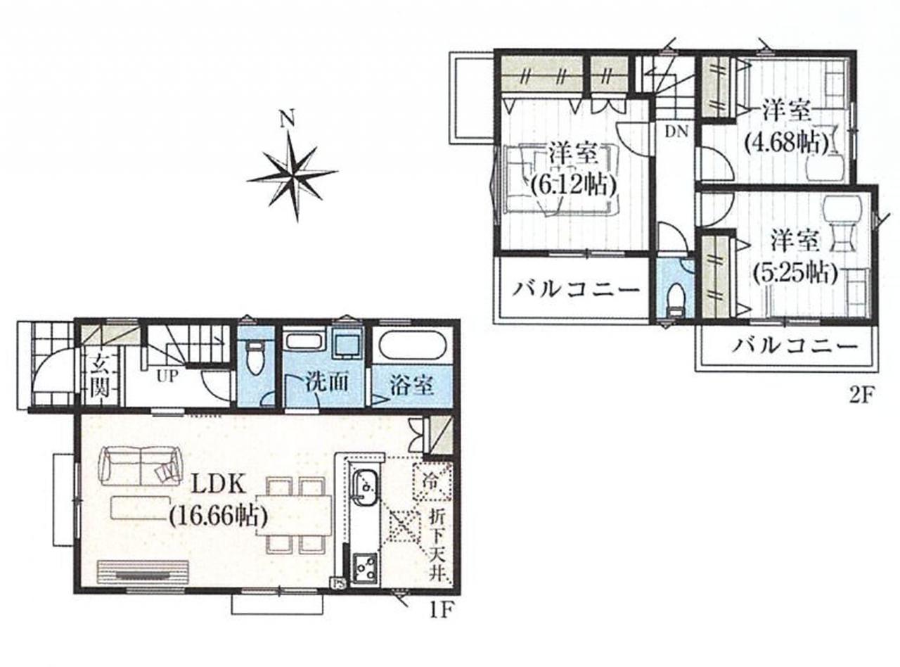
| 価格 | 間取り | 土地面積 | 建物面積 | 築年月 |
|---|---|---|---|---|
| 3,880万円 | 3LDK | 147.02m2(44.47坪) | 78.87m2(23.85坪) | 2026年1月 |
| 価格 | 3,880万円 |
|---|---|
| 間取り | 3LDK |
| 土地面積 | 147.02m2(44.47坪) |
| 建物面積 | 78.87m2(23.85坪) |
| 築年月 | 2026年1月 |
土地面積147.02m2、建物面積78.87m2、3LDKの収納豊富な新築住宅です♪
区画図
省エネ性能ラベル
路線図
エミテラス所沢などますます便利になっていく所沢駅周辺
緑あふれる航空公園
各種ホールや展示室のある所沢市民文化センターミューズ
西武新宿線「航空公園」駅西口目の前
駐車スペースもございます。
スタッフ一同お待ちしております
エミテラス 所沢 927m エミテラス 所沢
スーパーあまいけ ウィズ久米店 748m スーパーあまいけ ウィズ久米店
オーケー 所沢店 1333m オーケー 所沢店
ヤオコー 所沢有楽町店 1885m ヤオコー 所沢有楽町店
セブン-イレブン 所沢久米店 397m セブン-イレブン 所沢久米店
ファミリーマート 所沢松が丘店 724m ファミリーマート 所沢松が丘店
ドラッグセイムス 星の宮店 1246m ドラッグセイムス 星の宮店
所沢市立南陵中学校 523m 所沢市立南陵中学校
所沢市立南小学校 600m 所沢市立南小学校
所沢文化保育園 916m 所沢文化保育園
所沢文化幼稚園 970m 所沢文化幼稚園
東京白十字病院 1217m 東京白十字病院
所沢久米郵便局 688m 所沢久米郵便局
所沢市立所沢図書館 吾妻分館 1304m 所沢市立所沢図書館 吾妻分館
中町子ども広場 428m 中町子ども広場
悲田処跡公園 708m 悲田処跡公園
所沢駅 1370m 所沢駅
西所沢駅 1631m 西所沢駅
☆今すぐご案内可能です。気になった方はフリーダイヤル0120-28-7890まで即ご連絡を!!
所沢地域専門30年以上の実績ある当社にお任せください。
※お気軽にお問い合わせください。
物件概要
| 土地面積 | 147.02m2(44.47坪) | 建物面積 | 78.87m2(23.85坪) |
|---|---|---|---|
| 建物構造 | 木造 地上2階建て | 土地権利 | 所有権 |
| 向き | - | 築年月 | 2026年1月 |
| 用途地域 | 第1種住居地域 |
建ぺい率 | 50% |
| 容積率 | 80% | 現況 | - |
| 地目 | 宅地 | 都市計画 | 市街化 |
| 建築確認番号 | 第R07SHC104428号 | 引渡時期 | 相談 |
| 駐車場 | カースペース有 1台 | 情報更新日 | 2025年11月8日 |
| 次回更新予定日 | 2025年11月19日 | 私道面積 | 私道負担無 |
| セットバック | 接道状況 | 北側 5.4m 一方 公道 | |
| 取引態様 | 媒介 | ||
| リフォーム | |||
| 設備 | 都市ガス / 公営水道 閑静な住宅地 / 緑豊かな住宅地 / 2沿線以上利用可 / 2階建 / 南向き / 全室2面採光 / 陽当り良好 / 通風良好 / LDK15畳以上 / フローリング / 全居室フローリング / 24時間換気システム / 全居室収納 / 床下収納 / クローゼット / シューズボックス / システムキッチン / カウンターキッチン / 浴室乾燥機 / 浴室に窓 / シャワー付洗面化粧台 / トイレ2ヶ所 / 温水洗浄便座 / バルコニー / 2面以上バルコニー / 南面バルコニー / 複層ガラス / TVモニタ付インターホン / スーパー 徒歩10分以内 / 小学校 徒歩10分以内 / 小学校まで1km以内 / 周辺交通量少なめ / 整備された歩道 / 都市ガス |
||
| 制限事項 | |||
| 備考 | 【所沢地域専門のイエステーション】 ■オンライン内見サービス対応でご自宅からでも物件見学出来ます! |
||
| 土地面積 | 147.02m2(44.47坪) |
|---|---|
| 建物面積 | 78.87m2(23.85坪) |
| 建物構造 | 木造 地上2階建て |
| 土地権利 | 所有権 |
| 向き | - |
| 築年月 | 2026年1月 |
| 用途地域 | 第1種住居地域 |
| 建ぺい率 | 50% |
| 容積率 | 80% |
| 現況 | - |
| 地目 | 宅地 |
| 都市計画 | 市街化 |
| 建築確認番号 | 第R07SHC104428号 |
| 引渡時期 | 相談 |
| 駐車場 | カースペース有 1台 |
| 情報更新日 | 2025年11月8日 |
| 次回更新予定日 | 2025年11月19日 |
| 私道面積 | 私道負担無 |
| セットバック | |
| 接道状況 | 北側 5.4m 一方 公道 |
| 取引態様 | 媒介 |
| リフォーム | |
| 設備 | 都市ガス / 公営水道 閑静な住宅地 / 緑豊かな住宅地 / 2沿線以上利用可 / 2階建 / 南向き / 全室2面採光 / 陽当り良好 / 通風良好 / LDK15畳以上 / フローリング / 全居室フローリング / 24時間換気システム / 全居室収納 / 床下収納 / クローゼット / シューズボックス / システムキッチン / カウンターキッチン / 浴室乾燥機 / 浴室に窓 / シャワー付洗面化粧台 / トイレ2ヶ所 / 温水洗浄便座 / バルコニー / 2面以上バルコニー / 南面バルコニー / 複層ガラス / TVモニタ付インターホン / スーパー 徒歩10分以内 / 小学校 徒歩10分以内 / 小学校まで1km以内 / 周辺交通量少なめ / 整備された歩道 / 都市ガス |
| 制限事項 | |
| 備考 | 【所沢地域専門のイエステーション】 ■オンライン内見サービス対応でご自宅からでも物件見学出来ます! |
- 地積、建物床面積、仕様に変更が生じる場合があります。
- 図面と現況が異なる場合には現況を優先します。
- 物件情報は最新のものをご提供させて頂きますが、万一売約済の場合はご容赦ください。
- 掲載物件の取引態様が「仲介」となっているものは、仲介手数料減額物件を除き、ご成約の際に規定の手数料及びそれに係わる消費税を別途申し受けます。
- 建築条件付土地は土地売買契約締結後、一定期間内に当社指定の不動産会社もしくは建築業者と建築請負契約を結ぶことが前提となります。期間中に建築請負契約が成立しなかった場合、土地売買契約は白紙となり、支払った金額は全額返金されます。
ローンシミュレーション
| 借入期間 | 年 |
|---|---|
| 借入金利 | % |
※月々のお支払い例は金融機関や商品によって借入金額の条件は異なります。詳しくは店舗までお問い合わせください。
周辺環境
エミテラス 所沢
927m(徒歩12分)
エミテラス 所沢
スーパーあまいけ ウィズ久米店
748m(徒歩10分)
スーパーあまいけ ウィズ久米店
オーケー 所沢店
1333m(徒歩17分)
オーケー 所沢店
ヤオコー 所沢有楽町店
1885m(徒歩24分)
ヤオコー 所沢有楽町店
セブン-イレブン 所沢久米店
397m(徒歩5分)
セブン-イレブン 所沢久米店
ファミリーマート 所沢松が丘店
724m(徒歩10分)
ファミリーマート 所沢松が丘店
ドラッグセイムス 星の宮店
1246m(徒歩16分)
ドラッグセイムス 星の宮店
所沢市立南陵中学校
523m(徒歩7分)
所沢市立南陵中学校
所沢市立南小学校
600m(徒歩8分)
所沢市立南小学校
所沢文化保育園
916m(徒歩12分)
所沢文化保育園
所沢文化幼稚園
970m(徒歩13分)
所沢文化幼稚園
東京白十字病院
1217m(徒歩16分)
東京白十字病院
所沢久米郵便局
688m(徒歩9分)
所沢久米郵便局
所沢市立所沢図書館 吾妻分館
1304m(徒歩17分)
所沢市立所沢図書館 吾妻分館
中町子ども広場
428m(徒歩6分)
中町子ども広場
悲田処跡公園
708m(徒歩9分)
悲田処跡公園
所沢駅
1370m(徒歩18分)
所沢駅
西所沢駅
1631m(徒歩21分)
西所沢駅








