新築戸建
前沢3丁目 16号棟

| 価格 | 間取り | 土地面積 | 建物面積 | 築年月 |
|---|---|---|---|---|
| 4,780万円 | 4LDK | 120m2(36.3坪) | 94.75m2(28.66坪) | 2025年10月 |
| 価格 | 4,780万円 |
|---|---|
| 間取り | 4LDK |
| 土地面積 | 120m2(36.3坪) |
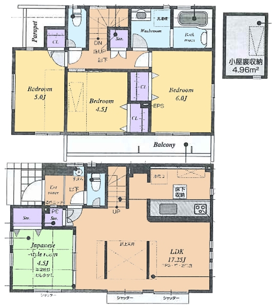
| 建物面積 | 94.75m2(28.66坪) |
| 築年月 | 2025年10月 |
この物件に関するお問い合わせ
POINT
物件概要
| 土地面積 | 120m2(36.3坪) | 建物面積 | 94.75m2(28.66坪) |
|---|---|---|---|
| 建物構造 | 木造 地上2階建て | 土地権利 | 所有権 |
| 向き | - | 築年月 | 2025年10月 |
| 用途地域 | 第1種低層住居専用地域 |
建ぺい率 | 40% |
| 容積率 | 80% | 現況 | 完成済 |
| 地目 | 宅地 | 都市計画 | 市街化 |
| 建築確認番号 | 第R07SHC109660号 | 引渡時期 | 相談 |
| 駐車場 | カースペース有 2台 | 情報更新日 | 2025年11月10日 |
| 次回更新予定日 | 2025年11月22日 | 私道面積 | 私道負担無 |
| セットバック | 接道状況 | 北側 5m 一方 公道 | |
| 取引態様 | 媒介 | ||
| リフォーム | |||
| 設備 | 都市ガス / 公営水道 / 汚水:公共下水 / 雑排水:公共下水 制震構造 / 耐震構造 / 整形地 / 大型タウン内 / 開発分譲地内 / 2沿線以上利用可 / 2階建 / 南向き / LDK15畳以上 / ロフト / フローリング / リビング階段 / 24時間換気システム / 全居室収納 / 床下収納 / クローゼット / シューズボックス / システムキッチン / 対面式キッチン / 食器洗乾燥機 / 浄水器 / 追焚機能 / シャワー付洗面化粧台 / トイレ2ヶ所 / 温水洗浄便座 / バルコニー / 南面バルコニー / 太陽光発電システム / 複層ガラス / 全居室複層ガラスか複層サッシ / 光ファイバー / 駐車2台可 / TVモニタ付インターホン / 火災警報器(報知器) / 小学校 徒歩10分以内 / 小学校まで1km以内 / 都市ガス |
||
| 制限事項 | 第一種高度地区/22条区域/景観法 | ||
| 備考 | 網戸11万円(税込)で設置可/カースペース車種制限有(うち1台分軽自動車のみ) | ||
| 土地面積 | 120m2(36.3坪) |
|---|---|
| 建物面積 | 94.75m2(28.66坪) |
| 建物構造 | 木造 地上2階建て |
| 土地権利 | 所有権 |
| 向き | - |
| 築年月 | 2025年10月 |
| 用途地域 | 第1種低層住居専用地域 |
| 建ぺい率 | 40% |
| 容積率 | 80% |
| 現況 | 完成済 |
| 地目 | 宅地 |
| 都市計画 | 市街化 |
| 建築確認番号 | 第R07SHC109660号 |
| 引渡時期 | 相談 |
| 駐車場 | カースペース有 2台 |
| 情報更新日 | 2025年11月10日 |
| 次回更新予定日 | 2025年11月22日 |
| 私道面積 | 私道負担無 |
| セットバック | |
| 接道状況 | 北側 5m 一方 公道 |
| 取引態様 | 媒介 |
| リフォーム | |
| 設備 | 都市ガス / 公営水道 / 汚水:公共下水 / 雑排水:公共下水 制震構造 / 耐震構造 / 整形地 / 大型タウン内 / 開発分譲地内 / 2沿線以上利用可 / 2階建 / 南向き / LDK15畳以上 / ロフト / フローリング / リビング階段 / 24時間換気システム / 全居室収納 / 床下収納 / クローゼット / シューズボックス / システムキッチン / 対面式キッチン / 食器洗乾燥機 / 浄水器 / 追焚機能 / シャワー付洗面化粧台 / トイレ2ヶ所 / 温水洗浄便座 / バルコニー / 南面バルコニー / 太陽光発電システム / 複層ガラス / 全居室複層ガラスか複層サッシ / 光ファイバー / 駐車2台可 / TVモニタ付インターホン / 火災警報器(報知器) / 小学校 徒歩10分以内 / 小学校まで1km以内 / 都市ガス |
| 制限事項 | 第一種高度地区/22条区域/景観法 |
| 備考 | 網戸11万円(税込)で設置可/カースペース車種制限有(うち1台分軽自動車のみ) |
- 地積、建物床面積、仕様に変更が生じる場合があります。
- 図面と現況が異なる場合には現況を優先します。
- 物件情報は最新のものをご提供させて頂きますが、万一売約済の場合はご容赦ください。
- 掲載物件の取引態様が「仲介」となっているものは、仲介手数料減額物件を除き、ご成約の際に規定の手数料及びそれに係わる消費税を別途申し受けます。
- 建築条件付土地は土地売買契約締結後、一定期間内に当社指定の不動産会社もしくは建築業者と建築請負契約を結ぶことが前提となります。期間中に建築請負契約が成立しなかった場合、土地売買契約は白紙となり、支払った金額は全額返金されます。
ローンシミュレーション
| 借入期間 | 年 |
|---|---|
| 借入金利 | % |
月々のお支払い例
円
※月々のお支払い例は金融機関や商品によって借入金額の条件は異なります。詳しくは店舗までお問い合わせください。
周辺環境
小学校
東久留米市立南町小学校
650m(徒歩9分)
中学校
東久留米市立西中学校
1100m(徒歩14分)
コンビニ
ファミリーマート 東久留米南町店
400m(徒歩5分)
コンビニ
ミニストップ 東久留米柳新田通店
520m(徒歩7分)
スーパー
コープみらい コープ花小金井店
860m(徒歩11分)
スーパー
西友滝山店
900m(徒歩12分)
ショッピングセンター
イオンモール東久留米
1220m(徒歩16分)
幼稚園・保育園
東久留米市立 まえさわ保育園
784m(徒歩10分)
幼稚園・保育園
前沢幼稚園 東久留米こども園
320m(徒歩4分)
幼稚園・保育園
かたばみ保育園
360m(徒歩5分)
公園
滝山公園
860m(徒歩11分)
郵便局
東久留米前沢郵便局
400m(徒歩5分)
この物件に関するお問い合わせ
物件名:前沢3丁目 16号棟 物件番号:20221460
営業時間 9:00~20:00
(休業日 休業日 毎週火曜日・水曜日)
物件名:前沢3丁目 16号棟 物件番号:20221460






