中秦泉寺 売土地 建築条件なし

| 価格 | 土地面積 | 建築条件 |
|---|---|---|
| 380万円 | 76.03m2(22.99坪) | 無 |
| 価格 | 380万円 |
|---|---|
| 土地面積 | 76.03m2(22.99坪) |
| 建築条件 | 無 |
高台の土地で津波被害想定外!
コンパクトで実用的な新築が建築可能です。
区画図になります。
閑静な住宅街で落ち着きのある生活が実現できます
北向きですが、お昼時には日当たりも確保できます。
建築プランもご提案可能です。
中秦泉寺の建築条件なしの土地になります。
工務店の紹介も致します。
前面道路は5m以上でお車の通行もストレスないですよ
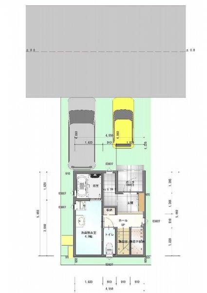
建築プラン例です。
工務店の紹介も可能です。
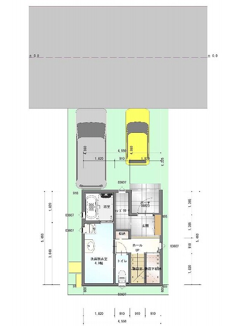
建築プラン例です。
工務店の紹介も可能です。
お車の駐車並列2台のプラン例があります。
お車の駐車並列2台のプラン例があります。
イオンモール 高知 1739m 高知市で一番大きいショッピングモール。休日は家族でショッピングも楽しめます♪
エースワン 秦泉寺店 1206m 営業時間 8:00~21:00
ファミリーマート 高知東秦泉寺店 1684m 24時間営業
高知市立 愛宕中学校 1580m 学校教育目標は、「自己指導能力を高め、自ら課題解決できる生徒の育成」
高知市立秦小学校 940m 学校教育目標は、「豊かな心を持ち、心身とも健康でよく考え行動する児童の育成」
日本赤十字社 高知赤十字病院 1718m 近隣に総合病院があると、なぜか安心してしまいます。
物件概要
| 土地面積 | 76.03m2(22.99坪) | 土地権利 | 所有権 |
|---|---|---|---|
| 用途地域 | 第1種中高層住居専用地域 |
建ぺい率 | 60% |
| 容積率 | 200% | 現況 | 更地 - |
| 地目 | 宅地 | 都市計画 | 市街化 |
| 引渡時期 | 相談 | 私道面積 | 私道負担無 |
| セットバック | 接道状況 | 北側 5.3m 一方 公道 接面:6m | |
| 情報更新日 | 2025年10月26日 | 次回更新予定日 | 2025年11月22日 |
| 取引態様 | 一般 | ||
| 設備 | 市街地が近い / 閑静な住宅地 / 緑豊かな住宅地 / 高台に立地 / 小学校まで1km以内 / 周辺交通量少なめ / 山が見える / 眺望良好 / 更地渡し / 建築条件なし / 建物プラン例有り | ||
| 制限事項 | |||
| 備考 | 閑静な住宅地で高台の建築条件のない土地です。 お好きな工務店で建築可能です。 建築プランもございますのでご気軽にご相談ください。 |
||
| 土地面積 | 76.03m2(22.99坪) |
|---|---|
| 土地権利 | 所有権 |
| 用途地域 | 第1種中高層住居専用地域 |
| 建ぺい率 | 60% |
| 容積率 | 200% |
| 現況 | 更地 - |
| 地目 | 宅地 |
| 都市計画 | 市街化 |
| 引渡時期 | 相談 |
| 情報更新日 | 2025年10月26日 |
| 次回更新予定日 | 2025年11月22日 |
| 私道面積 | 私道負担無 |
| セットバック | |
| 接道状況 | 北側 5.3m 一方 公道 接面:6m |
| 取引態様 | 一般 |
| 設備 | 市街地が近い / 閑静な住宅地 / 緑豊かな住宅地 / 高台に立地 / 小学校まで1km以内 / 周辺交通量少なめ / 山が見える / 眺望良好 / 更地渡し / 建築条件なし / 建物プラン例有り |
| 制限事項 | |
| 備考 | 閑静な住宅地で高台の建築条件のない土地です。 お好きな工務店で建築可能です。 建築プランもございますのでご気軽にご相談ください。 |
- 地積、建物床面積、仕様に変更が生じる場合があります。
- 図面と現況が異なる場合には現況を優先します。
- 物件情報は最新のものをご提供させて頂きますが、万一売約済の場合はご容赦ください。
- 掲載物件の取引態様が「仲介」となっているものは、仲介手数料減額物件を除き、ご成約の際に規定の手数料及びそれに係わる消費税を別途申し受けます。
- 建築条件付土地は土地売買契約締結後、一定期間内に当社指定の不動産会社もしくは建築業者と建築請負契約を結ぶことが前提となります。期間中に建築請負契約が成立しなかった場合、土地売買契約は白紙となり、支払った金額は全額返金されます。
ローンシミュレーション
| 借入期間 | 年 |
|---|---|
| 借入金利 | % |
※月々のお支払い例は金融機関や商品によって借入金額の条件は異なります。詳しくは店舗までお問い合わせください。
周辺環境
イオンモール 高知
1739m(徒歩22分)
高知市で一番大きいショッピングモール。休日は家族でショッピングも楽しめます♪
エースワン 秦泉寺店
1206m(徒歩16分)
営業時間 8:00~21:00
ファミリーマート 高知東秦泉寺店
1684m(徒歩22分)
24時間営業
高知市立 愛宕中学校
1580m(徒歩20分)
学校教育目標は、「自己指導能力を高め、自ら課題解決できる生徒の育成」
高知市立秦小学校
940m(徒歩12分)
学校教育目標は、「豊かな心を持ち、心身とも健康でよく考え行動する児童の育成」
日本赤十字社 高知赤十字病院
1718m(徒歩22分)
近隣に総合病院があると、なぜか安心してしまいます。







