新築戸建
大泉学園町5丁目

| 価格 | 間取り | 土地面積 | 建物面積 | 築年月 |
|---|---|---|---|---|
| 5,180万円 | 3LDK | 88.17m2(26.67坪) | 78.24m2(23.66坪) | 2025年7月 |
| 価格 | 5,180万円 |
|---|---|
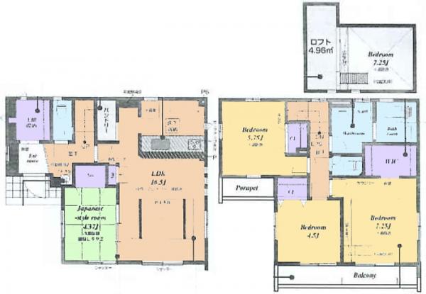
| 間取り | 3LDK |
| 土地面積 | 88.17m2(26.67坪) |
| 建物面積 | 78.24m2(23.66坪) |
| 築年月 | 2025年7月 |
この物件に関するお問い合わせ
POINT
物件概要
| 土地面積 | 88.17m2(26.67坪) | 建物面積 | 78.24m2(23.66坪) |
|---|---|---|---|
| 建物構造 | 木造 地上2階建て | 土地権利 | 所有権 |
| 向き | 南 | 築年月 | 2025年7月 |
| 用途地域 | 第1種低層住居専用地域 |
建ぺい率 | 50% |
| 容積率 | 100% | 現況 | 完成済 |
| 地目 | 宅地 | 都市計画 | 市街化 |
| 建築確認番号 | TKK確済24-876号 | 引渡時期 | 相談 |
| 駐車場 | カースペース有 1台 | 情報更新日 | 2025年11月7日 |
| 次回更新予定日 | 2025年11月16日 | 私道面積 | 私道負担無 |
| セットバック | 接道状況 | 南側 5m 一方 公道 接面:7.3m | |
| 取引態様 | 媒介 | ||
| リフォーム | |||
| 設備 | 都市ガス / 公営水道 / 汚水:公共下水 / 雑排水:公共下水 南側道路面す / 2階建 / LDK15畳以上 / フローリング / ダウンライト / 全居室収納 / 床下収納 / ウォークインクローゼット / クローゼット / シューズボックス / 対面式キッチン / カウンターキッチン / 食器洗乾燥機 / 浄水器 / 浴室乾燥機 / 浴室に窓 / シャワー付洗面化粧台 / トイレ2ヶ所 / 温水洗浄便座 / 室内洗濯機置場 / 洗濯機置場有 / 洗面所独立 / バルコニー / 南面バルコニー / TVモニタ付インターホン / カードキー / スーパー 徒歩10分以内 / 小学校 徒歩10分以内 / 小学校まで1km以内 / 都市ガス |
||
| 制限事項 | 高度地区 準防火地域 風致地区 高さ最高限度有 日影制限有 宅地造成及び特定盛土等規制法 | ||
| 備考 | |||
| 土地面積 | 88.17m2(26.67坪) |
|---|---|
| 建物面積 | 78.24m2(23.66坪) |
| 建物構造 | 木造 地上2階建て |
| 土地権利 | 所有権 |
| 向き | 南 |
| 築年月 | 2025年7月 |
| 用途地域 | 第1種低層住居専用地域 |
| 建ぺい率 | 50% |
| 容積率 | 100% |
| 現況 | 完成済 |
| 地目 | 宅地 |
| 都市計画 | 市街化 |
| 建築確認番号 | TKK確済24-876号 |
| 引渡時期 | 相談 |
| 駐車場 | カースペース有 1台 |
| 情報更新日 | 2025年11月7日 |
| 次回更新予定日 | 2025年11月16日 |
| 私道面積 | 私道負担無 |
| セットバック | |
| 接道状況 | 南側 5m 一方 公道 接面:7.3m |
| 取引態様 | 媒介 |
| リフォーム | |
| 設備 | 都市ガス / 公営水道 / 汚水:公共下水 / 雑排水:公共下水 南側道路面す / 2階建 / LDK15畳以上 / フローリング / ダウンライト / 全居室収納 / 床下収納 / ウォークインクローゼット / クローゼット / シューズボックス / 対面式キッチン / カウンターキッチン / 食器洗乾燥機 / 浄水器 / 浴室乾燥機 / 浴室に窓 / シャワー付洗面化粧台 / トイレ2ヶ所 / 温水洗浄便座 / 室内洗濯機置場 / 洗濯機置場有 / 洗面所独立 / バルコニー / 南面バルコニー / TVモニタ付インターホン / カードキー / スーパー 徒歩10分以内 / 小学校 徒歩10分以内 / 小学校まで1km以内 / 都市ガス |
| 制限事項 | 高度地区 準防火地域 風致地区 高さ最高限度有 日影制限有 宅地造成及び特定盛土等規制法 |
| 備考 |
- 地積、建物床面積、仕様に変更が生じる場合があります。
- 図面と現況が異なる場合には現況を優先します。
- 物件情報は最新のものをご提供させて頂きますが、万一売約済の場合はご容赦ください。
- 掲載物件の取引態様が「仲介」となっているものは、仲介手数料減額物件を除き、ご成約の際に規定の手数料及びそれに係わる消費税を別途申し受けます。
- 建築条件付土地は土地売買契約締結後、一定期間内に当社指定の不動産会社もしくは建築業者と建築請負契約を結ぶことが前提となります。期間中に建築請負契約が成立しなかった場合、土地売買契約は白紙となり、支払った金額は全額返金されます。
ローンシミュレーション
| 借入期間 | 年 |
|---|---|
| 借入金利 | % |
月々のお支払い例
円
※月々のお支払い例は金融機関や商品によって借入金額の条件は異なります。詳しくは店舗までお問い合わせください。
周辺環境
小学校
練馬区立大泉学園緑小学校
320m(徒歩4分)
中学校
練馬区立大泉学園中学校
670m(徒歩9分)
この物件に関するお問い合わせ
物件名:大泉学園町5丁目 物件番号:20221372
10時00分~18時30分(休業日 毎週 火曜日・水曜日)
物件名:大泉学園町5丁目 物件番号:20221372








